Status
Onder bod
Adres
Vlaemsche Hoeve 198
Postcode
5251 TG
Plaats
Vlijmen
Koopprijs
€ 349.500,- k.k.

Vlijmen – Vlaemsche Hoeve 198

VDH wonen makelaardij presenteert dit ruime en lichte 3-kamer appartement gelegen op loopafstand van het centrum van Vlijmen met alle voorzieningen binnen handbereik. Het appartement is gesitueerd op de tweede verdieping van een modern appartementencomplex en beschikt over een eigen berging op de begane grond. Goed om te weten: – Centrale entree met bellentableau, brievenbussen… Lees verder »

  1. Soort
    Appartement
  2. Bouwjaar
    2001
  3. Woonopp.
    81 m2
  4. Aantal kamers
    3

Interesse in deze woning?


Deel deze woning via:

Plan bezichting
 

Kenmerken

Overdracht

Status
Onder bod
Vraagprijs
€ 349.500,- k.k.
Aanvaarding
In overleg

Bouwvorm

Soort object
Appartement
Bouwjaar
2001
Bouwvorm
Bestaande bouw
Liggingen
In woonwijk

Indeling

Woonoppervlakte
81 m2
Overige inpandige ruimte
0 m2
Buitenruimtes gebouwgebonden of vrijstaand
17 m2
Oppervlakte externe bergruimte
5 m2
Inhoud
266 m3
Aantal kamers
3
Aantal kamers
3
Aantal slaapkamers
2
Aantal woonlagen
1

Energie

Energieklasse
A
Energielabel einddatum
3 februari 2036
Isolatie
Dakisolatie, Muurisolatie, Vloerisolatie, Dubbelglas
Warm water
CV ketel
Verwarming
CV ketel
CV ketel type
HR

Buitenruimte

Tuin
Geen tuin

Omschrijving

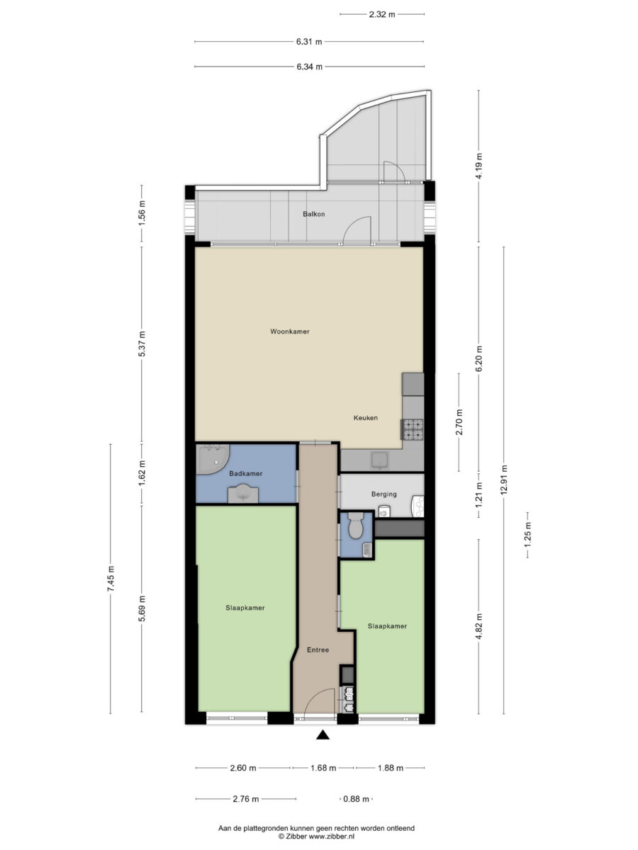
VDH wonen makelaardij presenteert dit ruime en lichte 3-kamer appartement gelegen op loopafstand van het centrum van Vlijmen met alle voorzieningen binnen handbereik. Het appartement is gesitueerd op de tweede verdieping van een modern appartementencomplex en beschikt over een eigen berging op de begane grond.

Goed om te weten:

– Centrale entree met bellentableau, brievenbussen en ontvangsthal naar de lift en het trappenhuis.
– Heerlijk lichte woonkamer met grote glazen pui voorzien van een elektrisch rolluik, afgewerkt met laminaatvloer en toegang tot het balkon.
– De open keuken in hoekopstelling beschikt over diverse inbouwapparatuur.
– De lichte slaapkamers zijn ca. 15m2 en ca. 11 m2 groot en gelegen aan de voorzijde van het appartement
– Een badkamer welke is uitgerust met een wastafelmeubel, een douchecabine en aansluitingen tbv wasapparatuur. Via de hal is er een separaat toilet te bereiken.
– Praktisch interne berging met opstelling van de CV ketel.
– Het balkon is in totaal ca. 16 m2 gelegen op het zuiden.
– Eigen berging op de begane grond van ca. 5 m2.
– De maandelijkse servicekosten bedragen €158,- per maand

Ben jij enthousiast geworden van deze woning? Neem dan contact op met ons kantoor voor het plannen van een bezichtiging!

Deze informatie is met zorg samengesteld. Aan de inhoud kunnen geen rechten worden ontleend. Oppervlaktes en maten zijn indicatief.

Media

Brochure

Download de brochure van deze woning

Locatie

VDH makelaar

Een bezichtiging inplannen? We leiden je graag rond in deze woning!

© vdhwonen.nl | Alle rechten voorbehouden | Archief | Cookies | Cookiewet | Privacyverklaring