Status
Beschikbaar
Adres
Vughterstraat 223
Postcode
5211 GD
Plaats
's-Hertogenbosch
Koopprijs
€ 1.195.000,- k.k.

‘s-Hertogenbosch – Vughterstraat 223

VDH wonen makelaardij presenteert dit indrukwekkende herenhuis gelegen op een absolute toplocatie in één van de oudste straten van de Bossche binnenstad; de geliefde Vughterstraat. Je hebt hier de beschikking over o.a. een begane grond van ruim 28 meter diep met tal van mogelijkheden, vier ruime slaapkamers, een kelder en een heerlijke zonnige achtertuin! Alle… Lees verder »

  1. Soort
    Woonhuis
  2. Woonopp.
    263 m2
  3. Aantal kamers
    7

Interesse in deze woning?


Deel deze woning via:

Plan bezichting
 

Kenmerken

Overdracht

Status
Beschikbaar
Vraagprijs
€ 1.195.000,- k.k.
Aanvaarding
In overleg

Bouwvorm

Soort object
Woonhuis
Soort woning
Herenhuis
Type woning
Tussenwoning
Bouwvorm
Bestaande bouw

Indeling

Woonoppervlakte
263 m2
Perceel oppervlakte
234 m2
Overige inpandige ruimte
0 m2
Buitenruimtes gebouwgebonden of vrijstaand
12 m2
Oppervlakte externe bergruimte
0 m2
Inhoud
868 m3
Aantal kamers
7
Aantal kamers
7
Aantal slaapkamers
4

Energie

Isolatie
Gedeeltelijk dubbelglas, Voorzetramen
Verwarming
CV ketel
CV ketel type
Nefit HR

Buitenruimte

Tuin
Achtertuin
Hoofdtuin
Achtertuin
Oppervlakte hoofdtuin
52 m2
Ligging hoofdtuin
West
Kwaliteit tuin
Normaal

Omschrijving

VDH wonen makelaardij presenteert dit indrukwekkende herenhuis gelegen op een absolute toplocatie in één van de oudste straten van de Bossche binnenstad; de geliefde Vughterstraat. Je hebt hier de beschikking over o.a. een begane grond van ruim 28 meter diep met tal van mogelijkheden, vier ruime slaapkamers, een kelder en een heerlijke zonnige achtertuin!

Alle denkbare voorzieningen waaronder de vele winkels, musea, leuke boetiekjes en heerlijke restaurants liggen vanaf deze geweldige plek allemaal op loopafstand. Het NS-station is tevens te voet goed bereikbaar en bovendien zijn in de directe omgeving zowel het beschermd natuurgebied ‘Het Bossche Broek’ met recreatiemogelijkheden rondom de Pettelaarse Plas en de fraaie, groene omgeving van de Dommel met de Westwal gelegen.

Kortom, écht een geweldige plek om te wonen!

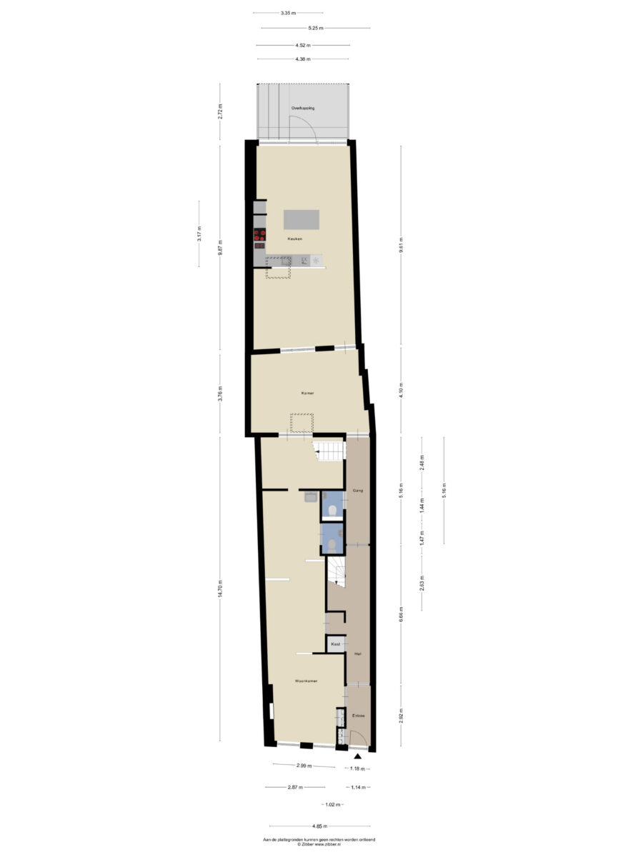
Achter de fraaie gevel schuilt een bijzonder diep pand met een indrukwekkende begane grond van in totaal ca. 145 m².
De ruimtes bieden talloze mogelijkheden. Zo is er een prachtige, tuingerichte ruimte aanwezig waar bijvoorbeeld een riante woonkeuken kan worden gerealiseerd. Dé plek waar binnen en buiten in elkaar overlopen.
De zonnige achtertuin is gelegen op het westen, waardoor je hier in de middag en avond optimaal geniet van de zon. Perfect voor lange zomeravonden!
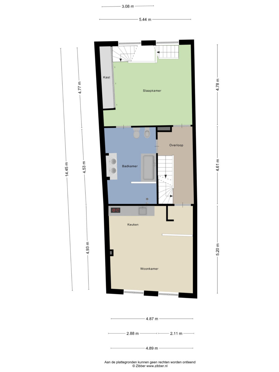
De woning beschikt verder over een praktische kelder en op de eerste verdieping bevinden zich twee royale (slaap)kamers. Er is een zeer ruime badkamer aanwezig compleet met ligbad, grote inloopdouche, toilet, bidet en een badkamermeubel met dubbele wastafel.
De tweede verdieping biedt nog eens twee goede (slaap)kamers, beide voorzien van dakramen. Daarnaast is er een tweede badkamer met toilet, doucheruimte en aansluitingen t.b.v. wasapparatuur. Ook vind je hier de stookruimte met de CV ketel.

Het betreft hier een herenhuis met uitzonderlijk veel ruimte en volop potentie om geheel naar eigen wens en smaak in te delen en te verbouwen.

Deze woning is ideaal voor wie groots wil wonen of werken aan huis wil combineren met uiterst comfortabel leven!

Bij serieuze interesse nodigen wij u graag uit voor het plannen van een bezichtiging via ons kantoor.

Deze informatie is door ons met de nodige zorgvuldigheid samengesteld. Onzerzijds wordt echter geen enkele aansprakelijkheid aanvaard voor enige onvolledigheid, onjuistheid of anderszins, dan wel de gevolgen daarvan. Alle opgegeven maten en oppervlakten zijn indicatief.

Media

Brochure

Locatie

VDH makelaar

Een bezichtiging inplannen? We leiden je graag rond in deze woning!

© vdhwonen.nl | Alle rechten voorbehouden | Archief | Cookies | Cookiewet | Privacyverklaring