Status
Verkocht onder voorbehoud
Adres
Schubertsingel 73
Postcode
5216 XA
Plaats
's-Hertogenbosch
Koopprijs
€ 360.000,- k.k.

‘s-Hertogenbosch – Schubertsingel 73

VDH Wonen Makelaardij presenteert: wonen met uitzicht op de stad én de natuur! Op een absolute toplocatie aan de geliefde Schubertsingel in ’s-Hertogenbosch Zuid vind je dit bijzonder lichte en instapklare 2-kamer appartement. Met een riant balkon van circa 8 m² op het westen, een fenomenaal vrij uitzicht, een eigen berging én parkeergelegenheid op eigen… Lees verder »

  1. Soort
    Appartement
  2. Bouwjaar
    2018
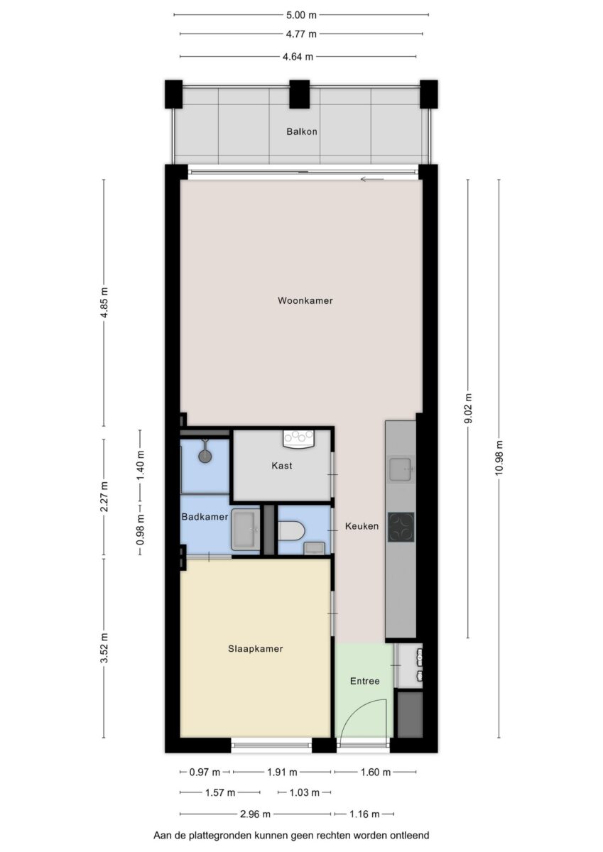
  3. Woonopp.
    51 m2
  4. Aantal kamers
    2

Interesse in deze woning?


Deel deze woning via:

Plan bezichting
 

Kenmerken

Overdracht

Status
Verkocht onder voorbehoud
Vraagprijs
€ 360.000,- k.k.
Aanvaarding
In overleg

Bouwvorm

Soort object
Appartement
Bouwjaar
2018
Bouwvorm
Bestaande bouw
Liggingen
Aan water, In woonwijk, Vrij uitzicht

Indeling

Woonoppervlakte
51 m2
Overige inpandige ruimte
0 m2
Buitenruimtes gebouwgebonden of vrijstaand
8 m2
Oppervlakte externe bergruimte
4 m2
Inhoud
176 m3
Aantal kamers
2
Aantal kamers
2
Aantal slaapkamers
1
Aantal woonlagen
1

Energie

Energieklasse
A
Energielabel einddatum
3 september 2028
Isolatie
Dakisolatie, Muurisolatie, Vloerisolatie, Dubbelglas, Volledig geïsoleerd
Warm water
Elektrische boiler eigendom
Verwarming
Blokverwarming, Vloerverwarming geheel

Buitenruimte

Tuin
Geen tuin

Omschrijving

VDH Wonen Makelaardij presenteert: wonen met uitzicht op de stad én de natuur!

Op een absolute toplocatie aan de geliefde Schubertsingel in ’s-Hertogenbosch Zuid vind je dit bijzonder lichte en instapklare 2-kamer appartement. Met een riant balkon van circa 8 m² op het westen, een fenomenaal vrij uitzicht, een eigen berging én parkeergelegenheid op eigen terrein, is dit een unieke kans voor wie comfortabel en stijlvol wil wonen op een plek waar rust, ruimte en stadse levendigheid samenkomen.

Locatie, locatie, locatie… en wat voor één!
Wonen aan de Schubertsingel betekent het beste van twee werelden. Binnen enkele minuten fiets je naar de historische Bossche binnenstad, terwijl de bushalte zich letterlijk voor de deur bevindt. Ook natuurliefhebbers zitten hier perfect: de Zuiderplas en het prachtige Bossche Broek liggen op loopafstand. Ideaal voor een wandeling, hardloopronde of gewoon even ontsnappen aan de drukte van de dag. Daarnaast zijn supermarkten, winkels, horeca, sportvoorzieningen en uitvalswegen allemaal binnen handbereik.

Modern wonen met een verhaal
Het voormalige kantoorgebouw van Rijkswaterstaat is in 2018 getransformeerd tot een modern en duurzaam appartementencomplex met een frisse, eigentijdse uitstraling. Het appartement, gelegen op de tweede verdieping, is volledig instapklaar en klaar voor de toekomst.

Goed om te weten:
• Lichte en ruim opgezette woonkamer met directe toegang tot het zonnige balkon over de volle breedte
• Modern uitgevoerde keuken met o.a. een elektrische kookplaat, combi oven/magnetron en koelkast met vriesvak
• Heerlijk zonnig balkon op het westen met vrij uitzicht over water en groen, waar je geniet van prachtige zonsondergangen in warme tinten van goud, oranje, roze en paars
• Ruime slaapkamer grenzend aan de rustig gelegen binnentuin
• Strakke badkamer voorzien van inloopdouche en wastafel
• Separate toiletruimte met fonteintje
• Praktische inpandige berging en technische ruimte met wasmachineaansluiting
• Extra (fiets)berging in het gebouw

Duurzaam en comfortabel
Het appartement beschikt over energielabel A, is volledig voorzien van vloerverwarming en heeft een eigen warmtepomp. Dat betekent niet alleen comfort, maar ook een toekomstbestendige manier van wonen.

Parkeren & gemak
Op het afgesloten terrein, bereikbaar via een slagboom, is ruime parkeergelegenheid aanwezig voor bewoners. Wel zo prettig.

Actieve en gezonde VvE
De Vereniging van Eigenaren is actief, betrokken en financieel gezond. Documentatie zoals het MJOP, jaarstukken en notulen zijn beschikbaar. De maandelijkse bijdrage bedraagt € 87,71.

Ben jij klaar voor jouw nieuwe uitzicht?
Dit appartement moet je van binnen ervaren. De combinatie van licht, ruimte en uitzicht maakt dit een plek waar je je direct thuis voelt.

Neem contact met ons op en plan snel een bezichtiging!

Disclaimer:
Deze informatie is met zorg samengesteld. Desondanks kunnen er geen rechten aan worden ontleend. Alle opgegeven maten en oppervlakten zijn indicatief.

Media

Brochure

Download de brochure van deze woning

Locatie

VDH makelaar

Een bezichtiging inplannen? We leiden je graag rond in deze woning!

© vdhwonen.nl | Alle rechten voorbehouden | Archief | Cookies | Cookiewet | Privacyverklaring