Status
Beschikbaar
Adres
Jacob van Oudenhovenstraat 39
Postcode
5212 GD
Plaats
's-Hertogenbosch
Koopprijs
€ 615.000,- k.k.

‘s-Hertogenbosch – Jacob van Oudenhovenstraat 39

VDH wonen makelaardij presenteert deze op stijlvolle wijze gemoderniseerde, uitgebouwde en riante gezinswoning uit de geliefde jaren ’30 met o.a. een ruime woonkamer, 5 slaapkamers, vernieuwde keuken, recent gemoderniseerde badkamer en een lekkere achtertuin met berging evenals achterom. De Jacob van Oudenhovenstraat is gunstig gelegen tussen de alombekende Aartshertogenlaan en de van Rijckevorsel van Kessellaan… Lees verder »

  1. Soort
    Woonhuis
  2. Bouwjaar
    1938
  3. Woonopp.
    136 m2
  4. Aantal kamers
    6

Interesse in deze woning?


Deel deze woning via:

Plan bezichting
 

Kenmerken

Overdracht

Status
Beschikbaar
Vraagprijs
€ 615.000,- k.k.
Aanvaarding
In overleg

Bouwvorm

Soort object
Woonhuis
Soort woning
Eengezinswoning
Type woning
Tussenwoning
Bouwjaar
1938
Bouwvorm
Bestaande bouw
Liggingen
In woonwijk

Indeling

Woonoppervlakte
136 m2
Perceel oppervlakte
113 m2
Overige inpandige ruimte
0 m2
Buitenruimtes gebouwgebonden of vrijstaand
0 m2
Oppervlakte externe bergruimte
10 m2
Inhoud
480 m3
Aantal kamers
6
Aantal kamers
6
Aantal slaapkamers
5

Energie

Energieklasse
E
Energielabel einddatum
19 januari 2027
Isolatie
Dakisolatie, Vloerisolatie, Dubbelglas
Warm water
CV ketel
Verwarming
CV ketel
CV ketel type
Nefit

Buitenruimte

Tuin
Achtertuin
Kwaliteit tuin
Normaal

Omschrijving

VDH wonen makelaardij presenteert deze op stijlvolle wijze gemoderniseerde, uitgebouwde en riante gezinswoning uit de geliefde jaren ’30 met o.a. een ruime woonkamer, 5 slaapkamers, vernieuwde keuken, recent gemoderniseerde badkamer en een lekkere achtertuin met berging evenals achterom.
De Jacob van Oudenhovenstraat is gunstig gelegen tussen de alombekende Aartshertogenlaan en de van Rijckevorsel van Kessellaan als onderdeel van de gewilde wijk ‘De Vliert’. Je bevindt je hier op slechts enkele fietsminuten van de gezellige Bossche binnenstad, het Centraal Station, Station Oost en het Prins Hendrikpark. Ook winkels en uitvalswegen zijn gemakkelijk en snel bereikbaar. Parkeren in deze buurt is gratis en er is daarbij parkeergelegenheid recht voor de deur. Kortom, een heerlijke plek om te wonen!

Goed om te weten:

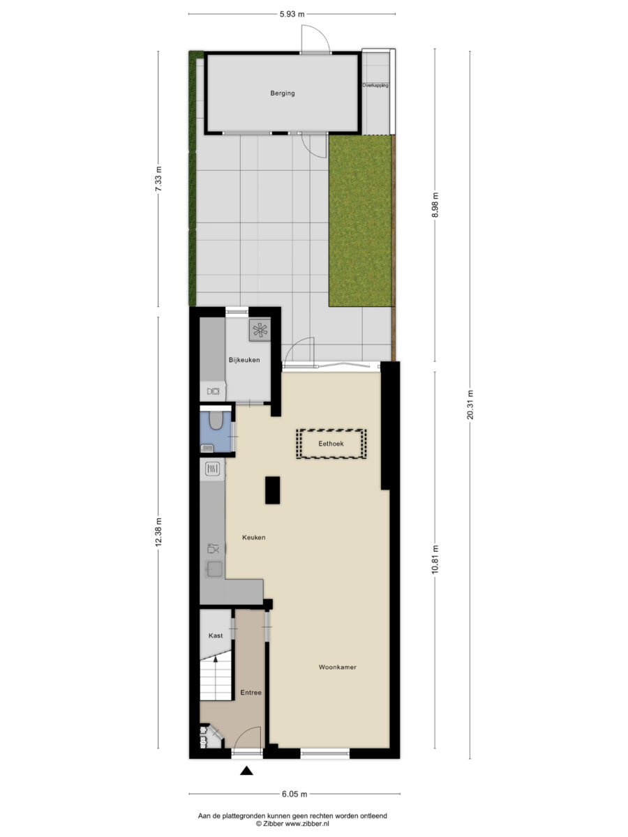
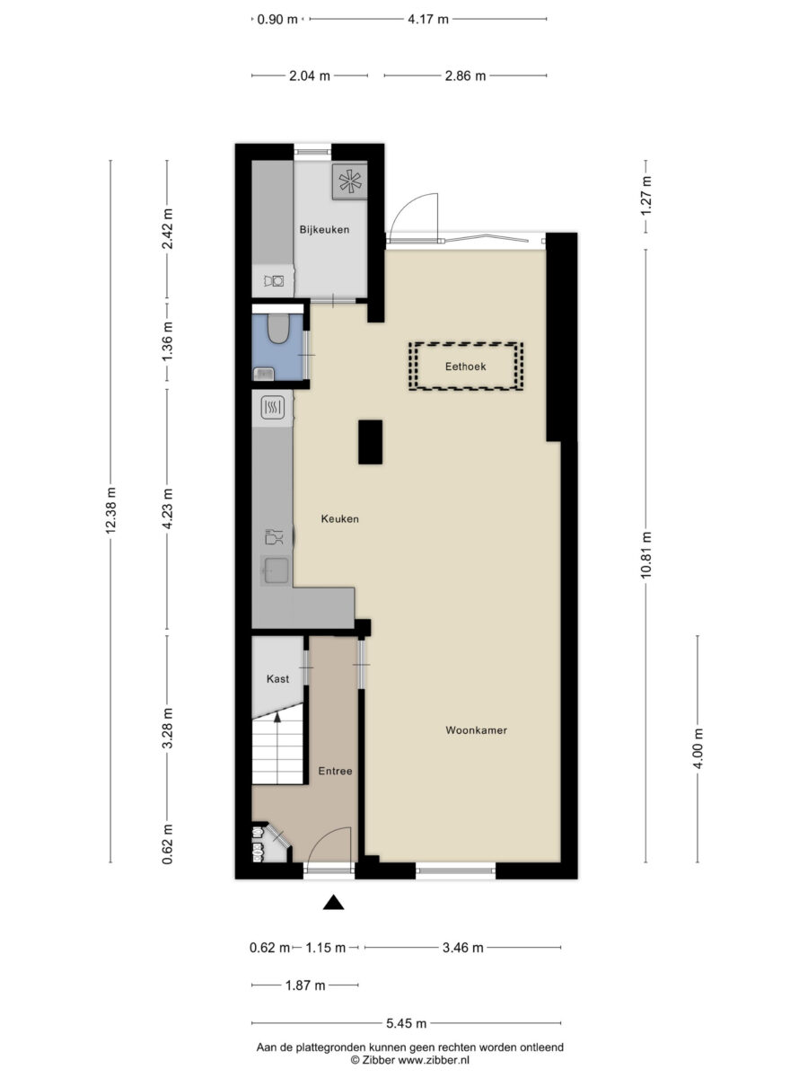
– Hal met trapopgang naar de eerste verdieping, moderne meterkast en een verdiepte trapkast.
– In 2023 royaal uitgebouwde woonkamer met een fraaie visgraatvloer met vloerverwarming, glad stucwerk wanden, lichtstraat en volledig te openen achterpui van harmonicadeuren.
– Moderne keuken voorzien van diverse inbouwapparatuur met o.a. een inductie kookplaat, vaatwasser, koelkast en combioven.
– Praktische bijkeuken met de aansluitingen t.b.v. wasapparatuur, een keukenblok en bergruimte.
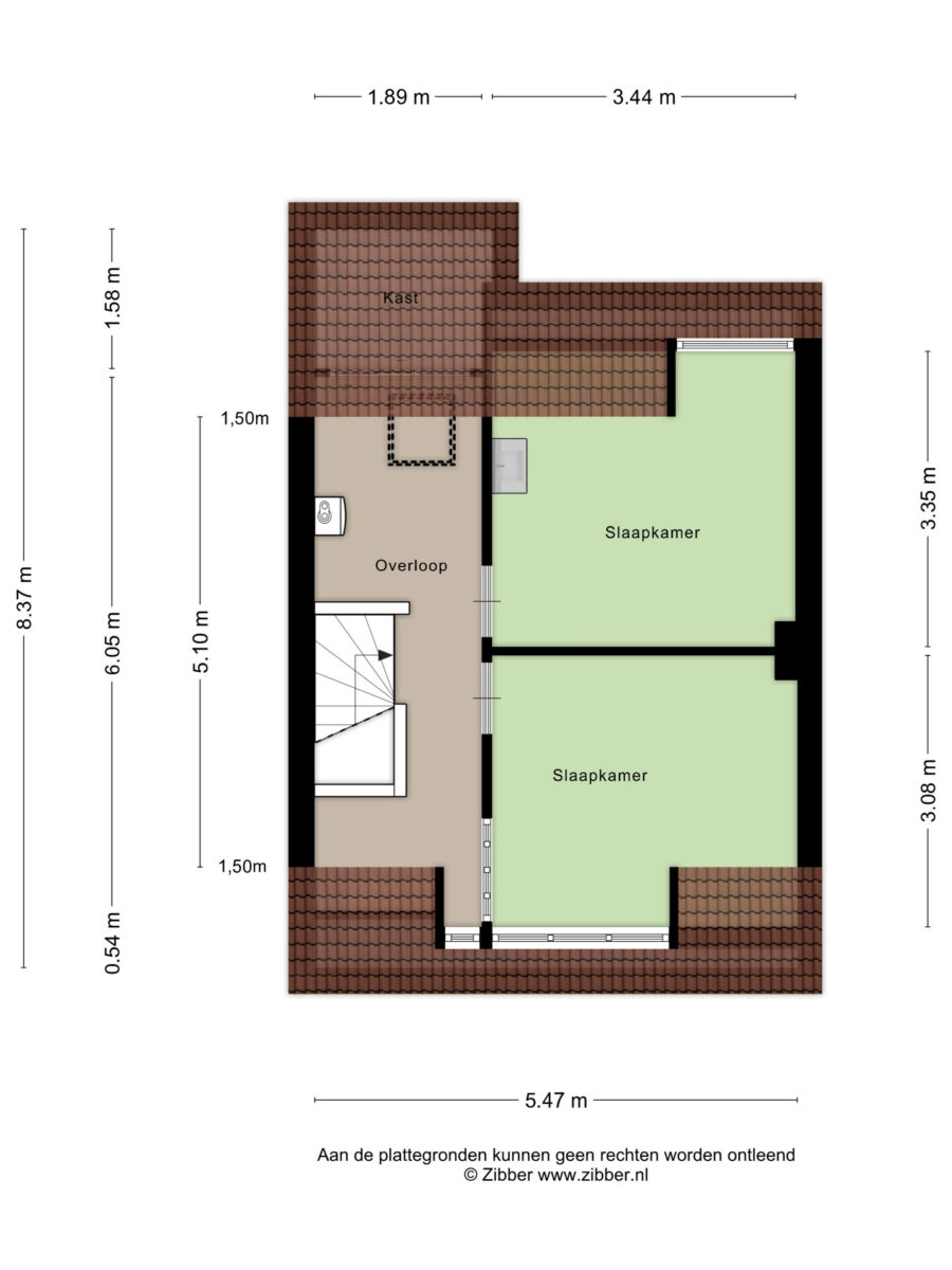
– Drie goede slaapkamers op de eerste verdieping, waarvan twee zijn voorzien van een inbouwkast, één beschikt over een elektrisch rolluik en één over een elektrisch zonnescherm.
– De geheel vernieuwde badkamer uit 2023 beschikt over een ruime inloopdouche, dubbele wastafel, toilet en vloerverwarming.
– Voorzolder met veel (berg)ruimte en opstelling van de CV ketel.
– Twee ruim bemeten slaapkamers uitgerust met een dakkapel waarvan diegene aan de voorzijde is geplaatst in 2021.
– Onderhoudsvrije achtertuin met stenen tuinberging en een achterom.

Het betreft hier een aantrekkelijke jaren ’30 woning met veel ruimte en comfort en door de gunstige locatie heb je alle denkbare voorzieningen binnen handbereik.
Ben jij nu ook zo enthousiast geworden van deze leuke gezinswoning? Neem dan contact om met ons kantoor voor het plannen van een bezichtiging!

Deze informatie is door ons met de nodige zorgvuldigheid samengesteld. Onzerzijds wordt echter geen enkele aansprakelijkheid aanvaard voor enige onvolledigheid, onjuistheid of anderszins, dan wel de gevolgen daarvan. Alle opgegeven maten en oppervlakten zijn indicatief.

Media

Brochure

Download de brochure van deze woning

Locatie

VDH makelaar

Een bezichtiging inplannen? We leiden je graag rond in deze woning!

© vdhwonen.nl | Alle rechten voorbehouden | Archief | Cookies | Cookiewet | Privacyverklaring