Status
Verkocht
Adres
Aquasingel 7
Postcode
5247 JK
Plaats
Rosmalen
Koopprijs
€ 605.000,- k.k.

Rosmalen – Aquasingel 7

VDH Wonen Makelaardij presenteert: Wonen met uitzicht, luxe en een unieke woonbeleving Op een van de mooiste en meest geliefde locaties van de Groote Wielen staat deze prachtige hoekwoning uit 2016. Wat deze woning écht bijzonder maakt, is het schitterende vrije uitzicht over de waterplas. Iedere dag opnieuw geniet je hier van een levend schilderij… Lees verder »

  1. Soort
    Woonhuis
  2. Bouwjaar
    2016
  3. Woonopp.
    146 m2
  4. Aantal kamers
    6

Interesse in deze woning?


Deel deze woning via:

Plan bezichting
 

Kenmerken

Overdracht

Status
Verkocht
Vraagprijs
€ 605.000,- k.k.
Aanvaarding
In overleg

Bouwvorm

Soort object
Woonhuis
Soort woning
Eengezinswoning
Type woning
Eindwoning
Bouwjaar
2016
Bouwvorm
Bestaande bouw
Liggingen
Aan rustige weg, In woonwijk, Vrij uitzicht, Aan vaarwater

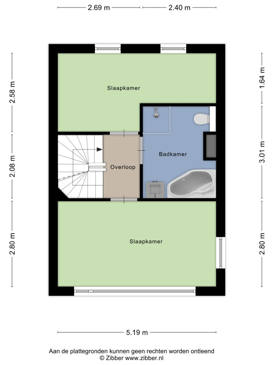
Indeling

Woonoppervlakte
146 m2
Perceel oppervlakte
143 m2
Overige inpandige ruimte
0 m2
Buitenruimtes gebouwgebonden of vrijstaand
0 m2
Oppervlakte externe bergruimte
7 m2
Inhoud
516 m3
Aantal kamers
6
Aantal kamers
6
Aantal slaapkamers
4

Energie

Energieklasse
A
Energielabel einddatum
1 mei 2026
Isolatie
Volledig geïsoleerd
Warm water
CV ketel
Verwarming
CV ketel, Vloerverwarming geheel, Gashaard

Buitenruimte

Tuin
Achtertuin
Hoofdtuin
Achtertuin
Oppervlakte hoofdtuin
53 m2
Ligging hoofdtuin
Zuid
Kwaliteit tuin
Verzorgd

Omschrijving

VDH Wonen Makelaardij presenteert:

Wonen met uitzicht, luxe en een unieke woonbeleving

Op een van de mooiste en meest geliefde locaties van de Groote Wielen staat deze prachtige hoekwoning uit 2016. Wat deze woning écht bijzonder maakt, is het schitterende vrije uitzicht over de waterplas. Iedere dag opnieuw geniet je hier van een levend schilderij dat continu verandert met de seizoenen en het licht. Het gevoel van ruimte, rust en vrijheid maakt het wonen hier tot een ware beleving.

De woning combineert luxe met een slimme splitlevel-indeling die zorgt voor extra wooncomfort. Het is eigenlijk een dubbele leefruimte in één. Op de begane grond vormt de royale woonkeuken het kloppend hart van het huis. Hier wordt gekookt, geborreld en gedineerd met vrienden en familie. Tegelijkertijd bevindt zich op de eerste woonlaag een ruime en sfeervolle woonkamer waar je in alle rust kunt ontspannen, een filmavond kunt houden of samen met vrienden voetbal kunt kijken, zonder dat je elkaar in de weg zit. Een woonconcept dat voor velen uniek en verrassend praktisch is.

De afwerking van de woning is van hoog niveau. De moderne keuken met kookeiland en diverse inbouwapparatuur biedt alles wat je van een luxe keuken mag verwachten. De badkamer is stijlvol en compleet, er zijn vier ruime slaapkamers en de gehele woning is voorzien van vloerverwarming. De zonnige tuin op het zuiden biedt volop privacy en beschikt over een achterom met directe toegang tot het afgesloten parkeerterrein. Energiezuinig, optimaal geïsoleerd en instapklaar, hier kun je zó intrekken.

De ligging in de groene en kindvriendelijke wijk Broekland is ideaal. Direct aan de waterplas kun je wandelen, fietsen of varen en ervaar je het gevoel van buitenleven, terwijl alle voorzieningen binnen handbereik zijn. Het nieuwe winkelcentrum van de Groote Wielen is bovendien een echte trekpleister. Hier vind je niet alleen supermarkten en diverse winkels voor de dagelijkse boodschappen, maar ook gezellige horecagelegenheden zoals Restobar Tuur en ’t Vosje. Of je nu zin hebt in een koffie, een borrel of een diner, het kan allemaal vlakbij huis.

Kortom, deze hoekwoning biedt méér dan alleen luxe en ruimte. Het unieke uitzicht, de doordachte indeling en de ideale ligging maken dit tot een woning die een echte woonbeleving garandeert. Hier ervaar je dagelijks de perfecte balans tussen rust, comfort en levendigheid.

Deze informatie is door ons met de nodige zorgvuldigheid samengesteld. Onzerzijds wordt echter geen enkele aansprakelijkheid aanvaard voor enige onvolledigheid, onjuistheid of anderszins, dan wel de gevolgen daarvan. Alle opgegeven maten en oppervlakten zijn indicatief.

Media

Brochure

Download de brochure van deze woning

Locatie

VDH makelaar

Een bezichtiging inplannen? We leiden je graag rond in deze woning!

© vdhwonen.nl | Alle rechten voorbehouden | Archief | Cookies | Cookiewet | Privacyverklaring