Status
Beschikbaar
Adres
van Musschenbroekstraat 2
Postcode
5223 BP
Plaats
's-Hertogenbosch
Koopprijs
€ 625.000,- k.k.

‘s-Hertogenbosch – van Musschenbroekstraat 2

VDH wonen makelaardij presenteert deze instapklare, sfeervolle en zeer gewilde jaren ’50 hoekwoning met o.a. 3 ruime slaapkamers, een zonnige achtertuin en garage. Dit charmante woonhuis met praktische indeling is gelegen direct nabij winkels, NS-station, basisschool en op loopafstand van de gezellige Bossche binnenstad en het Paleiskwartier. Kortom, een top woning op een gewilde locatie!… Lees verder »

  1. Soort
    Woonhuis
  2. Bouwjaar
    1953
  3. Woonopp.
    116 m2
  4. Aantal kamers
    4

Interesse in deze woning?


Deel deze woning via:

Plan bezichting
 

Kenmerken

Overdracht

Status
Beschikbaar
Vraagprijs
€ 625.000,- k.k.
Aanvaarding
In overleg

Bouwvorm

Soort object
Woonhuis
Soort woning
Eengezinswoning
Type woning
Hoekwoning
Bouwjaar
1953
Bouwvorm
Bestaande bouw
Liggingen
In centrum, In woonwijk

Indeling

Woonoppervlakte
116 m2
Perceel oppervlakte
178 m2
Overige inpandige ruimte
0 m2
Buitenruimtes gebouwgebonden of vrijstaand
0 m2
Oppervlakte externe bergruimte
23 m2
Inhoud
385 m3
Aantal kamers
4
Aantal kamers
4
Aantal slaapkamers
3

Energie

Energieklasse
C
Energielabel einddatum
28 juli 2031
Isolatie
Dubbelglas
Warm water
CV ketel
Verwarming
CV ketel
CV ketel type
Intergas HRE

Buitenruimte

Tuin
Achtertuin, Voortuin, Zijtuin
Hoofdtuin
Achtertuin
Oppervlakte hoofdtuin
66 m2
Ligging hoofdtuin
Zuidoost
Kwaliteit tuin
Fraai aangelegd

Omschrijving

VDH wonen makelaardij presenteert deze instapklare, sfeervolle en zeer gewilde jaren ’50 hoekwoning met o.a. 3 ruime slaapkamers, een zonnige achtertuin en garage. Dit charmante woonhuis met praktische indeling is gelegen direct nabij winkels, NS-station, basisschool en op loopafstand van de gezellige Bossche binnenstad en het Paleiskwartier. Kortom, een top woning op een gewilde locatie!

Bijzonderheden:
– Hal met trapopgang naar eerste verdieping, toilet, verdiepte trapkast en gemoderniseerde meterkast;
– Sfeervolle woonkamer voorzien van houten delen vloer, schouw met openhaard en schuifpui naar achtertuin;
– Open keuken voorzien van diverse inbouwapparatuur waaronder 5-pits gasfornuis, koelkast, vriezer, combioven, vaatwasser en een close-in boiler;
– Eerste verdieping met twee ruime slaapkamers afgewerkt met een nette laminaatvloer;
– De badkamer beschikt over een ligbad, douche en dubbele wastafel met meubel;
– Er is een separaat 2e toilet op de eerste verdieping aanwezig;
– Praktische wasruimte met alle benodigde aansluitingen en opstelling CV ketel;
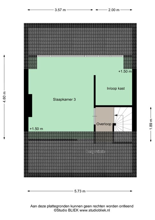
– Fraaie en riante slaapkamer op de tweede verdieping uitgerust met een grote dakkapel voorzien van rolluik, een walk-in closet gedeelte en veel bergruimte;
– Prachtige groene en zonnige achtertuin met achterom via zijkant van het huis en toegang tot tuinberging en de garage;
– De garage met openslaande deuren is via ‘eigen’ oprit vanaf straatzijde gemakkelijk te bereiken;
– Voor ca. €50,- per jaar is zijn er parkeervergunningen te verkrijgen.

U bent vast ook zo enthousiast geworden van deze aantrekkelijke en sfeervolle woning!? Neem dus snel contact op met ons kantoor voor het plannen van een bezichtiging!

Deze informatie is door ons met de nodige zorgvuldigheid samengesteld. Onzerzijds wordt echter geen enkele aansprakelijkheid aanvaard voor enige onvolledigheid, onjuistheid of anderszins, dan wel de gevolgen daarvan. Alle opgegeven maten en oppervlakten zijn indicatief.

Media

Brochure

Download de brochure van deze woning

Locatie

VDH makelaar

Een bezichtiging inplannen? We leiden je graag rond in deze woning!

© vdhwonen.nl | Alle rechten voorbehouden | Archief | Cookies | Cookiewet | Privacyverklaring