Status
Beschikbaar
Adres
Magnoliahof 13
Postcode
5213 HJ
Plaats
's-Hertogenbosch
Koopprijs
€ 425.000,- k.k.

‘s-Hertogenbosch – Magnoliahof 13

VDH wonen makelaardij presenteert deze semi-bungalow gelegen in de jonge en populaire woonwijk Hinthamerpark in ’s-Hertogenbosch. Deze woning is ideaal voor wie comfortabel en gelijkvloers wilt wonen, met onder andere een royale slaapkamer, complete badkamer op de begane grond en een zonnige patiotuin. De woning ligt aan een rustige straat en vrijwel direct aan een… Lees verder »

  1. Soort
    Woonhuis
  2. Bouwjaar
    2000
  3. Woonopp.
    84 m2
  4. Aantal kamers
    3

Interesse in deze woning?


Deel deze woning via:

Plan bezichting
 

Kenmerken

Overdracht

Status
Beschikbaar
Vraagprijs
€ 425.000,- k.k.
Aanvaarding
In overleg

Bouwvorm

Soort object
Woonhuis
Soort woning
Bungalow
Type woning
Tussenwoning
Bouwjaar
2000
Bouwvorm
Bestaande bouw
Liggingen
In woonwijk

Indeling

Woonoppervlakte
84 m2
Perceel oppervlakte
99 m2
Overige inpandige ruimte
5 m2
Buitenruimtes gebouwgebonden of vrijstaand
0 m2
Oppervlakte externe bergruimte
0 m2
Inhoud
316 m3
Aantal kamers
3
Aantal kamers
3
Aantal slaapkamers
2

Energie

Energieklasse
B
Energielabel einddatum
10 maart 2036
Isolatie
Dakisolatie, Muurisolatie, Vloerisolatie, Dubbelglas
Warm water
CV ketel
Verwarming
CV ketel
CV ketel type
Intergas HRe

Buitenruimte

Tuin
Patio atrium
Hoofdtuin
Patio atrium
Oppervlakte hoofdtuin
16 m2
Ligging hoofdtuin
Noordoost
Kwaliteit tuin
Normaal

Omschrijving

VDH wonen makelaardij presenteert deze semi-bungalow gelegen in de jonge en populaire woonwijk Hinthamerpark in ’s-Hertogenbosch. Deze woning is ideaal voor wie comfortabel en gelijkvloers wilt wonen, met onder andere een royale slaapkamer, complete badkamer op de begane grond en een zonnige patiotuin. De woning ligt aan een rustige straat en vrijwel direct aan een autovrij plein. De woonomgeving is verzorgd, sfeervol en kindvriendelijk, met veel groen, stijlvolle verlichting en een aangename rust. Alle voorzieningen zijn dichtbij: winkels, scholen, sportfaciliteiten zoals Sportiom, Het IJzeren Kind, recreatiegebied De Oosterplas, openbaar vervoer én uitvalswegen richting A2 en A59. Binnen tien minuten fietsen staat u bovendien in het hart van de bruisende binnenstad van ’s-Hertogenbosch, of op het centraal station. Kortom een heerlijke locatie in een groene en rustige omgeving!

Goed om te weten:

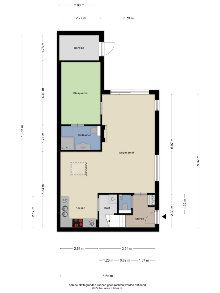
– Hal met moderne meterkast, een toilet en de trapopgang naar de verdieping.
– Ruime en lichte woonkamer met met elektrische haard en een schuifpui naar de patiotuin.
– Open keuken met diverse inbouwapparatuur en de beschikking over een praktische bergruimte met o.a. aansluitingen t.b.v. wasapparatuur.
– Slaapkamer met zicht op de patiotuin en toegang tot de badkamer.
– De badkamer is uitgerust met een douchecabine, een wastafelmeubel en een toilet.
– Eerste verdieping met een tweede slaapkamer welke ook ideaal te gebruiken is als werk- of hobbykamer.
– Op de eerste verdieping is momenteel een ruime ‘overloop’ met opstelling CV ketel en voldoende ruimte om wat extra’s te realiseren.
– Lekkere patiotuin met achterom en toegang tot een berging mete elektra.

Ben jij nou ook zo enthousiast geworden van deze zéér gunstig gelegen woning en zie jij mogelijkheden om hier je eigen thuis van te maken? Neem dan snel contact op met ons kantoor voor het plannen van een bezichtiging!

Hoewel deze informatie met grote zorg is samengesteld, kunnen hieraan geen rechten worden ontleend. Alle genoemde maten en oppervlakten zijn indicatief.

Media

Brochure

Download de brochure van deze woning

Locatie

VDH makelaar

Een bezichtiging inplannen? We leiden je graag rond in deze woning!

© vdhwonen.nl | Alle rechten voorbehouden | Archief | Cookies | Cookiewet | Privacyverklaring