Status
Verkocht onder voorbehoud
Adres
Graafseweg 255G
Postcode
5213 AJ
Plaats
's-Hertogenbosch
Koopprijs
€ 625.000,- k.k.

‘s-Hertogenbosch – Graafseweg 255G

VDH Wonen Makelaardij presenteert: Buitengewoon ruime boven-/stadswoning met royaal dakterras net buiten de stad! Wonen in of bij de stad betekent meestal kiezen: óf ruimte, óf buitenruimte, óf parkeren. Aan de Graafseweg 255G hoef je geen enkel compromis te sluiten. Deze instapklare, volledig gemoderniseerde dubbele bovenwoning heeft het allemaal: een eigen entree met bergruimte voor… Lees verder »

  1. Soort
    Appartement
  2. Bouwjaar
    1950
  3. Woonopp.
    140 m2
  4. Aantal kamers
    5

Interesse in deze woning?


Deel deze woning via:

Plan bezichting
 

Kenmerken

Overdracht

Status
Verkocht onder voorbehoud
Vraagprijs
€ 625.000,- k.k.
Aanvaarding
In overleg

Bouwvorm

Soort object
Appartement
Bouwjaar
1950
Bouwvorm
Bestaande bouw
Liggingen
In woonwijk

Indeling

Woonoppervlakte
140 m2
Overige inpandige ruimte
0 m2
Buitenruimtes gebouwgebonden of vrijstaand
70 m2
Oppervlakte externe bergruimte
6 m2
Inhoud
485 m3
Aantal kamers
5
Aantal kamers
5
Aantal slaapkamers
4
Aantal woonlagen
2

Energie

Energieklasse
E
Energielabel einddatum
30 december 2030
Isolatie
Dakisolatie, Dubbelglas
Warm water
CV ketel
Verwarming
CV ketel
CV ketel type
Bosch

Buitenruimte

Tuin
Zonneterras
Hoofdtuin
Zonneterras
Oppervlakte hoofdtuin
71 m2
Ligging hoofdtuin
Zuidoost
Kwaliteit tuin
Fraai aangelegd

Omschrijving

VDH Wonen Makelaardij presenteert:
Buitengewoon ruime boven-/stadswoning met royaal dakterras net buiten de stad!

Wonen in of bij de stad betekent meestal kiezen: óf ruimte, óf buitenruimte, óf parkeren. Aan de Graafseweg 255G hoef je geen enkel compromis te sluiten. Deze instapklare, volledig gemoderniseerde dubbele bovenwoning heeft het allemaal: een eigen entree met bergruimte voor fietsen en kinderwagens, een zonnig dakterras van ca. 70 m² en een balkon, meerdere slaapkamers, een moderne badkamer en twee parkeerplaatsen direct bij de woning. Buitenstads wonen met alle voordelen van de stad.

De woning ligt in het geliefde Hinthamerpark, net buiten het centrum van ’s-Hertogenbosch. Hier geniet je van rust, ruimte en groen, terwijl alle voorzieningen en het bruisende centrum toch op korte fietsafstand liggen. Bovendien beschik je over een eigen berging.

Indeling

Parkeerplaats:
Ruim bemeten privé parkeerplaats

Begane grond:
Eigen entree met ruime privéberging.

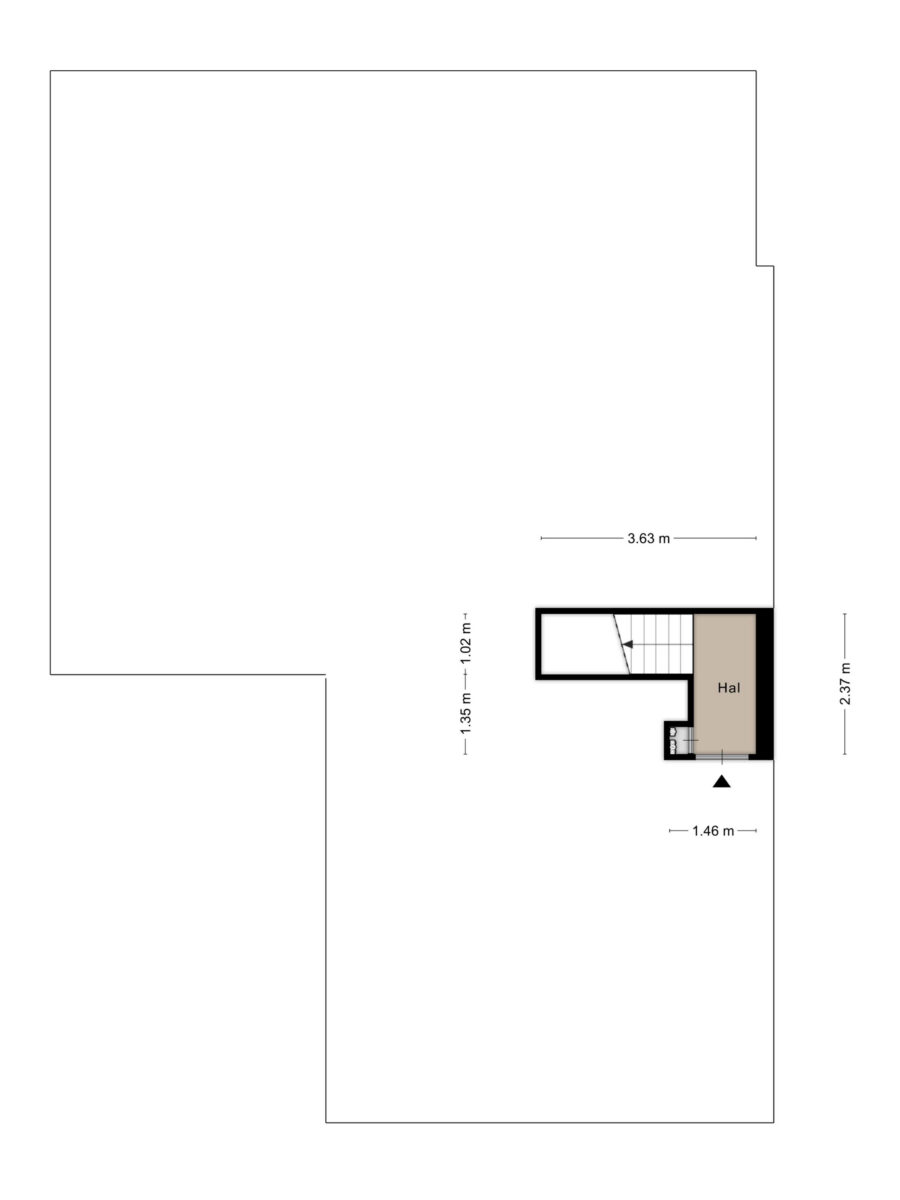
Eerste verdieping:
De sfeervolle hal met Potugeese vloertegels met toilet en garderobe leidt naar de ruime, lichte woonkamer met airco, fraaie eikenhouten vloer en dubbele openslaande deuren naar het dakterras. De afgesloten woonkeuken biedt veel bergruimte, een nieuw composieten werkblad en complete inbouwapparatuur (inductiekookplaat, vaatwasser, koelkast en combi-oven; grotendeels vernieuwd in 2019). De royale slaapkamer beschikt over een vaste kast en airco. De moderne badkamer heeft een inloopdouche, tweede toilet, wastafelmeubel en vloerverwarming. Het riante en zonnige dakterras van circa 70 m² ligt rondom de woning.

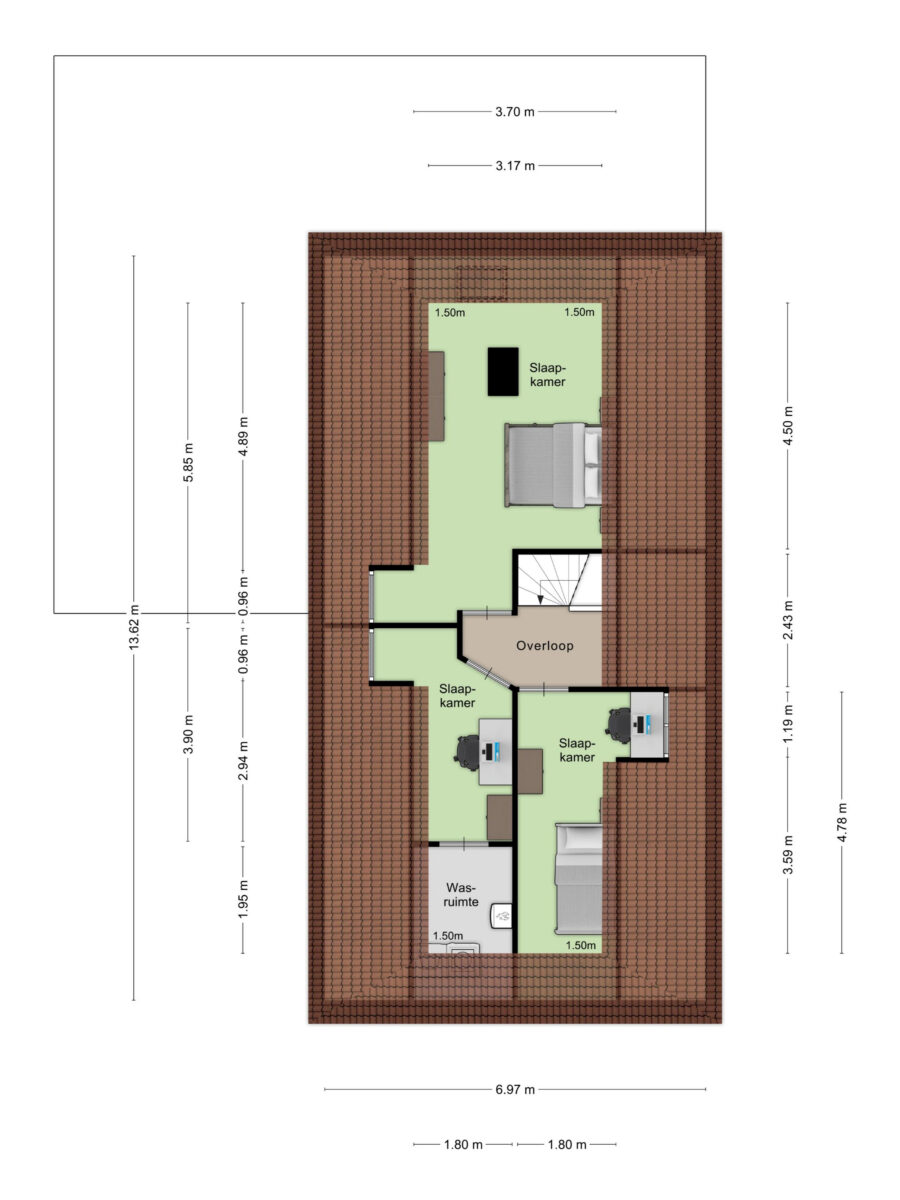
Tweede verdieping:
De overloop geeft toegang tot drie slaapkamers met dakkapel. De grootste slaapkamer heeft een extra dakraam. De tweede slaapkamer wordt momenteel gebruikt als kledingkamer. De derde slaapkamer heeft toegang tot een berging met wasmachine- en drogeraansluiting en de cv-ketel.

Bijzonderheden:
– Het riante dakterras van circa 70 m² ligt rondom en biedt altijd zon of schaduw.
– Verwarming en warm water worden geleverd door een Bosch cv-ketel uit 2016.
– In de woonkamer en hoofdslaapkamer is airco aanwezig (2019).
– De badkamer is in 2018 voorzien van vloerverwarming.
– Alle ramen zijn voorzien van dubbele beglazing en dakisolatie.
– Er zijn elektrisch bedienbare rolluiken en een zonneluifel bij het dakterras.
– De apparatuur in de keuken is grotendeels vernieuwd in 2019.
– Tot slot beschikt de woning over een eigen berging van 6 m² en twee privé parkeerplaatsen direct bij de woning.

Locatie:
De Graafseweg 255G ligt aan een rustige ventweg in het groene, karaktervolle Hinthamerpark. Scholen, winkels, sportvoorzieningen en uitvalswegen zijn dichtbij. Met de fiets sta je zo in de Bossche binnenstad. Een ideale combinatie van rustig wonen en alle stedelijke gemakken binnen handbereik: buitenstads wonen op zijn best.

Kortom: een buitengewoon ruime, instapklare bovenwoning met een uniek dakterras en een eigen parkeerplaatsen op een toplocatie net buiten ’s-Hertogenbosch.

Disclaimer: deze informatie is met zorg samengesteld. Er kunnen echter geen rechten aan worden ontleend. Afmetingen en oppervlaktes zijn indicatief.

Media

Brochure

Download de brochure van deze woning

Locatie

VDH makelaar

Een bezichtiging inplannen? We leiden je graag rond in deze woning!

© vdhwonen.nl | Alle rechten voorbehouden | Archief | Cookies | Cookiewet | Privacyverklaring