Status
Verkocht
Adres
Goedenrade 44
Postcode
5235 HN
Plaats
's-Hertogenbosch
Koopprijs
€ 489.500,- k.k.

‘s-Hertogenbosch – Goedenrade 44

VDH Wonen Makelaardij presenteert met trots deze royaal uitgebouwde, gemoderniseerde en verduurzaamde hoekwoning met multifunctionele garage, gelegen in de geliefde en kindvriendelijke wijk De Maaspoort. Een woning die direct opvalt door haar ruimte, verzorgde afwerking, zonnige tuin en slimme verduurzaming met zes zonnepanelen, goed voor een opbrengst van 1.019 kWh in het afgelopen jaar. De… Lees verder »

  1. Soort
    Woonhuis
  2. Bouwjaar
    1982
  3. Woonopp.
    123 m2
  4. Aantal kamers
    5

Interesse in deze woning?


Deel deze woning via:

Plan bezichting
 

Kenmerken

Overdracht

Status
Verkocht
Vraagprijs
€ 489.500,- k.k.
Aanvaarding
In overleg

Bouwvorm

Soort object
Woonhuis
Soort woning
Eengezinswoning
Type woning
Hoekwoning
Bouwjaar
1982
Bouwvorm
Bestaande bouw
Liggingen
In woonwijk

Indeling

Woonoppervlakte
123 m2
Perceel oppervlakte
199 m2
Overige inpandige ruimte
0 m2
Buitenruimtes gebouwgebonden of vrijstaand
3 m2
Oppervlakte externe bergruimte
19 m2
Inhoud
435 m3
Aantal kamers
5
Aantal kamers
5
Aantal slaapkamers
4

Energie

Energieklasse
B
Energielabel einddatum
24 oktober 2035
Isolatie
Muurisolatie, Dubbelglas
Warm water
CV ketel
Verwarming
CV ketel
CV ketel type
Remeha Avanta ACE 35C

Buitenruimte

Tuin
Achtertuin, Voortuin
Hoofdtuin
Achtertuin
Oppervlakte hoofdtuin
66 m2
Ligging hoofdtuin
Zuidwest
Kwaliteit tuin
Verzorgd

Omschrijving

VDH Wonen Makelaardij presenteert met trots deze royaal uitgebouwde, gemoderniseerde en verduurzaamde hoekwoning met multifunctionele garage, gelegen in de geliefde en kindvriendelijke wijk De Maaspoort.

Een woning die direct opvalt door haar ruimte, verzorgde afwerking, zonnige tuin en slimme verduurzaming met zes zonnepanelen, goed voor een opbrengst van 1.019 kWh in het afgelopen jaar.

De woning ligt in een rustige straat binnen de populaire wijk Maaspoort, met alle denkbare voorzieningen op korte afstand. Op loopafstand bevinden zich het overdekte winkelcentrum Lokerenpassage, scholen, kinderopvang en diverse sportfaciliteiten. Ook natuurliefhebbers komen hier volledig aan hun trekken: recreatiegebied De Noorderplas en het Burgemeester van Zwietenpark liggen letterlijk om de hoek – ideaal voor een wandeling, fietstocht of rondje hardlopen. Binnen tien minuten sta je bovendien in de historische binnenstad en op het Centraal Station van ’s-Hertogenbosch.

Via de overdekte entree kom je in de hal met toiletruimte en meterkast. De royale living is dankzij de uitbouw heerlijk licht en ruim, voorzien van een sfeervolle open haard en een fraaie visgraatvloer. De grote schuifpui aan de achterzijde zorgt voor een fijne verbinding met de zonnige tuin en maakt dit een heerlijke plek om te wonen en te genieten.

De moderne keuken heeft een praktische tegelvloer en een ruime L-opstelling met hoogglans witte fronten, een schiereiland met inductiekookplaat en volop bergruimte dankzij onder en bovenkasten en een apothekerskast. Het betonnen werkblad is in 2018 vernieuwd en de keukenapparatuur, waaronder oven, koelkast en afzuiging, is in 2023 vervangen. De leistenen plavuizen geven het geheel een eigentijdse en stoere uitstraling.

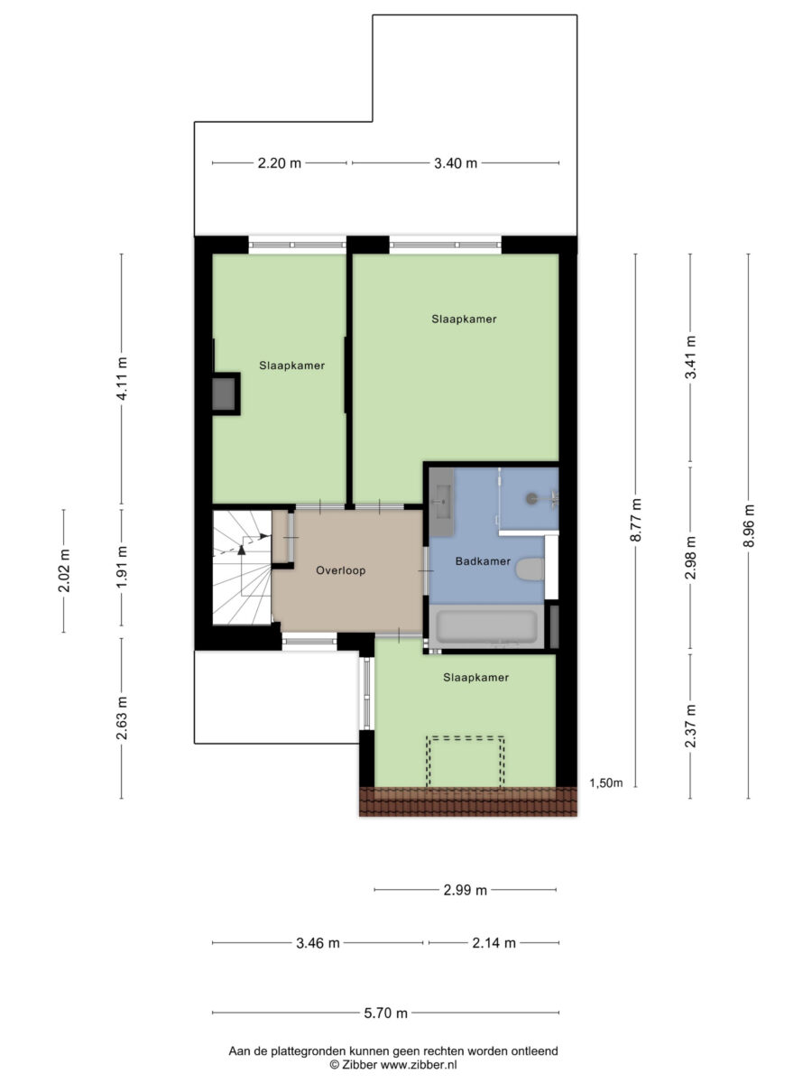
De eerste verdieping telt drie slaapkamers en een moderne badkamer. Twee slaapkamers liggen aan de achterzijde met een vrij uitzicht; één daarvan beschikt over een praktische vide, ideaal als hoogslaper of extra bergruimte. De ruime hoofdslaapkamer heeft een elektrisch rolluik en de derde slaapkamer aan de voorzijde is voorzien van een dakraam en charmant zijraampje. De badkamer is uitgerust met een inloopdouche, ligbad, wastafelmeubel en zwevend toilet. De combinatie van witte wandtegels, grijze vloertegels en glasblokken zorgt voor een frisse en luxe uitstraling.

Via een vaste trap bereik je de tweede verdieping met voorzolder en een ruime, volledig afgewerkte zolderkamer, perfect als vierde slaapkamer of werkruimte. De kunststof dakkapel zorgt voor veel lichtinval en hier vind je tevens de aansluiting voor de wasmachine.

De woning beschikt over een verzorgde voor- en achtertuin op een ruim perceel. De achtertuin, vernieuwd in 2021, ligt gunstig op de zon en biedt volop privacy. Hier vind je een fraaie grasmat, gecombineerd met hoogwaardige keramische tegels.

Achter op het perceel bevindt zich een brede, multifunctionele garage die momenteel in gebruik is als berging, maar ook uitstekend kan dienen als hobbyruimte, kantoor of praktijk aan huis. De ruimte is keurig afgewerkt met een zwarte vloercoating en gesausde muren. De garage grenst aan een openbare parkeerplaats en het betreft een veelzijdige ruimte met talloze gebruiksmogelijkheden.

Kortom, een instapklare, energiezuinige en verrassend ruime hoekwoning met heerlijke tuin, veel lichtinval en een multifunctionele extra ruimte. Perfect voor wie wonen en werken wil combineren of gewoon nét wat meer leefruimte zoekt in een gewilde Bossche wijk.

Disclaimer: deze informatie is met zorg samengesteld. Er kunnen echter geen rechten aan worden ontleend. Afmetingen en oppervlaktes zijn indicatief.

Media

Brochure

Download de brochure van deze woning

Locatie

VDH makelaar

Een bezichtiging inplannen? We leiden je graag rond in deze woning!

© vdhwonen.nl | Alle rechten voorbehouden | Archief | Cookies | Cookiewet | Privacyverklaring