Status
Verkocht onder voorbehoud
Adres
Almstraat 2
Postcode
5215 CG
Plaats
's-Hertogenbosch
Koopprijs
€ 495.000,- k.k.

‘s-Hertogenbosch – Almstraat 2

VDH Wonen Makelaardij presenteert: wonen op niveau met ruimte, comfort en een hoogwaardige afwerking Welkom in deze verrassend ruime en tot in detail gemoderniseerde hoekwoning, waar stijl, comfort en duurzaamheid samenkomen. Deze instapklare eindwoning is de afgelopen jaren vrijwel volledig vernieuwd en biedt een uitzonderlijk hoog woonniveau. Ideaal voor wie zorgeloos wil wonen met alle… Lees verder »

  1. Soort
    Woonhuis
  2. Bouwjaar
    1966
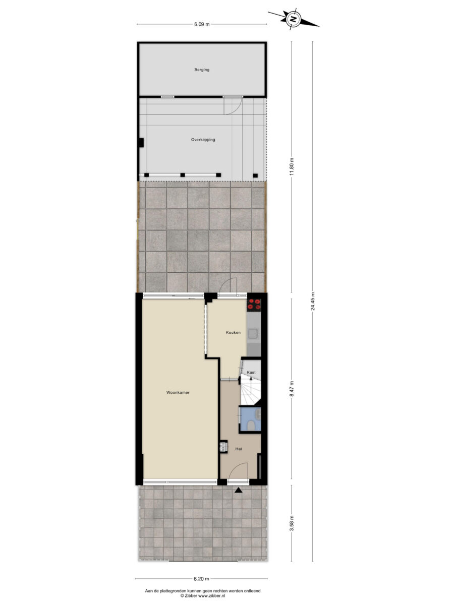
  3. Woonopp.
    119 m2
  4. Aantal kamers
    5

Interesse in deze woning?


Deel deze woning via:

Plan bezichting
 

Kenmerken

Overdracht

Status
Verkocht onder voorbehoud
Vraagprijs
€ 495.000,- k.k.
Aanvaarding
In overleg

Bouwvorm

Soort object
Woonhuis
Soort woning
Eengezinswoning
Type woning
Hoekwoning
Bouwjaar
1966
Bouwvorm
Bestaande bouw
Liggingen
In woonwijk

Indeling

Woonoppervlakte
119 m2
Perceel oppervlakte
150 m2
Overige inpandige ruimte
0 m2
Buitenruimtes gebouwgebonden of vrijstaand
6 m2
Oppervlakte externe bergruimte
19 m2
Inhoud
421 m3
Aantal kamers
5
Aantal kamers
5
Aantal slaapkamers
4

Energie

Energieklasse
A
Energielabel einddatum
13 april 2033
Isolatie
Dakisolatie, Muurisolatie, Dubbelglas
Warm water
CV ketel
Verwarming
CV ketel, Vloerverwarming gedeeltelijk
CV ketel type
Vaillant CW5 (Hybrid Ready)

Buitenruimte

Tuin
Achtertuin, Voortuin
Hoofdtuin
Achtertuin
Oppervlakte hoofdtuin
51 m2
Ligging hoofdtuin
Zuidwest
Kwaliteit tuin
Verzorgd

Omschrijving

VDH Wonen Makelaardij presenteert: wonen op niveau met ruimte, comfort en een hoogwaardige afwerking

Welkom in deze verrassend ruime en tot in detail gemoderniseerde hoekwoning, waar stijl, comfort en duurzaamheid samenkomen. Deze instapklare eindwoning is de afgelopen jaren vrijwel volledig vernieuwd en biedt een uitzonderlijk hoog woonniveau. Ideaal voor wie zorgeloos wil wonen met alle luxe van nu.

Wonen met allure en optimaal comfort
Bij binnenkomst ervaar je direct de hoogwaardige afwerking en het doordachte wooncomfort. De woning is voorzien van vloerverwarming op de begane grond, meerdere airconditionings die zowel koelen als verwarmen en uitstekende isolerende voorzieningen. Alles is erop gericht om een perfect leefklimaat te creëren in elk seizoen.

De moderne keuken uit 2024 vormt het hart van de woning en sluit naadloos aan op de lichte en ruime woonkamer. Grote raampartijen zorgen voor een prachtige lichtinval en een fijne verbinding met de tuin.

Ruimte in overvloed tot en met de bovenste verdieping
Met maar liefst vier volwaardige slaapkamers (door een eenvoudige ingreep zijn er 5-slaapkamers te realiseren) biedt deze woning alle ruimte voor het hele gezin, werken aan huis of hobby’s. De recent gemoderniseerde tweede verdieping uit 2025 is een absolute eyecatcher. Hier is een luxe, bijna hotelwaardige suite gerealiseerd met een ligbad en een heerlijk rustig slaapklimaat dankzij de airconditioning.

Buiten genieten in alle rust en privacy
De zonnige achtertuin op het westen is een heerlijke plek om te ontspannen. De tuin is onderhoudsvriendelijk aangelegd en beschikt over een royale berging met bergzolder en een sfeervolle veranda. Perfect voor lange zomeravonden. Dankzij de achterom is de tuin ook praktisch bereikbaar.

Duurzaam en toekomstgericht wonen
Deze woning is niet alleen stijlvol, maar ook klaar voor de toekomst. Denk aan:

Spouwmuurisolatie uit 2024
Volledig voorzien van HR+ beglazing in kunststof en aluminium kozijnen
8 zonnepanelen uit 2024
Vaillant Hybrid Ready CV ketel uit 2021
Vernieuwde meterkast uit 2024
Energielabel A

Een energiezuinig en comfortabel geheel dat klaar is voor de komende jaren.

Perfecte ligging met stad en natuur binnen handbereik
Gelegen in een rustige straat in ’s-Hertogenbosch Oost woon je hier op een ideale locatie. Het Rivierenplein met alle dagelijkse voorzieningen ligt op loopafstand, net als recreatiegebied de Oosterplas. Binnen enkele minuten fietsen bereik je de bruisende binnenstad van ’s-Hertogenbosch, terwijl ook natuurgebieden zoals het Bossche Broek en het Zuiderpark dichtbij zijn. Uitvalswegen zoals de A2 en A59 zijn snel bereikbaar.

Kort samengevat:

Royale instapklare hoekwoning met opbouw
Hoogwaardig gemoderniseerd en verduurzaamd
Vier slaapkamers inclusief luxe suite op zolder
Zonnige tuin op het westen met veranda en grote berging
Gelegen op een toplocatie nabij stad natuur en voorzieningen

Een woning als deze komt zelden voorbij modern ruim en tot in detail verzorgd. Plan snel een bezichtiging en ervaar het zelf.

Deze informatie is met zorg samengesteld. Aan eventuele onjuistheden kunnen geen rechten worden ontleend. Alle maten en oppervlakten zijn indicatief.

Media

Brochure

Download de brochure van deze woning

Locatie

VDH makelaar

Een bezichtiging inplannen? We leiden je graag rond in deze woning!

© vdhwonen.nl | Alle rechten voorbehouden | Archief | Cookies | Cookiewet | Privacyverklaring