Status
Verkocht onder voorbehoud
Adres
Walessingel 9
Postcode
5247 WT
Plaats
Rosmalen
Koopprijs
€ 675.000,- k.k.

Rosmalen – Walessingel 9

VDH Wonen Makelaardij presenteert: Royale, gemoderniseerde en uitgebouwde 2-onder-1-kapwoning met vrij uitzicht aan de Walessingel 9 in Rosmalen! Ontdek deze prachtige en energiezuinige woning in de geliefde wijk De Overlaet. Met maar liefst vier ruime slaapkamers, een luxe maatwerkkeuken, een royale uitgebouwde woonkamer en een voormalige garage (nu in gebruik als multifunctionele werk-/speelruimte met kitchenette)… Lees verder »

  1. Soort
    Woonhuis
  2. Bouwjaar
    1998
  3. Woonopp.
    155 m2
  4. Aantal kamers
    5

Interesse in deze woning?


Deel deze woning via:

Plan bezichting
 

Kenmerken

Overdracht

Status
Verkocht onder voorbehoud
Vraagprijs
€ 675.000,- k.k.
Aanvaarding
In overleg

Bouwvorm

Soort object
Woonhuis
Soort woning
Eengezinswoning
Type woning
Twee onder één kapwoning
Bouwjaar
1998
Bouwvorm
Bestaande bouw
Liggingen
In woonwijk, Vrij uitzicht

Indeling

Woonoppervlakte
155 m2
Perceel oppervlakte
229 m2
Overige inpandige ruimte
11 m2
Buitenruimtes gebouwgebonden of vrijstaand
9 m2
Oppervlakte externe bergruimte
6 m2
Inhoud
588 m3
Aantal kamers
5
Aantal kamers
5
Aantal slaapkamers
4

Energie

Energieklasse
A
Energielabel einddatum
17 september 2035
Isolatie
Dakisolatie, Muurisolatie, Vloerisolatie, Dubbelglas, Volledig geïsoleerd
Warm water
CV ketel, Elektrische boiler eigendom
Verwarming
CV ketel, Vloerverwarming gedeeltelijk
CV ketel type
Nefit TopLine 25/CW4

Buitenruimte

Tuin
Achtertuin, Voortuin, Zijtuin
Hoofdtuin
Achtertuin
Oppervlakte hoofdtuin
77 m2
Ligging hoofdtuin
Zuidoost
Kwaliteit tuin
Verzorgd

Omschrijving

VDH Wonen Makelaardij presenteert:
Royale, gemoderniseerde en uitgebouwde 2-onder-1-kapwoning met vrij uitzicht aan de Walessingel 9 in Rosmalen!

Ontdek deze prachtige en energiezuinige woning in de geliefde wijk De Overlaet. Met maar liefst vier ruime slaapkamers, een luxe maatwerkkeuken, een royale uitgebouwde woonkamer en een voormalige garage (nu in gebruik als multifunctionele werk-/speelruimte met kitchenette) biedt deze woning alle comfort die u zich kunt wensen. U parkeert eenvoudig op eigen terrein met ruimte voor twee auto’s, waarbij de mogelijkheid bestaat om een laadpaal te installeren. Aan de achterzijde geniet u van een heerlijk zonnige tuin met veel privacy en een vrijstaande stenen berging voorzien van elektra en water. Aan de voorzijde kijkt u prachtig weids weg over het groen, een uniek vrij uitzicht!

De woning is uitstekend onderhouden, volledig geïsoleerd (dak-, muur- en vloerisolatie, HR-glas) en voorzien van maar liefst 13 zonnepanelen (geplaatst in 2019). Dit zorgt voor lage energielasten en een zeer comfortabel binnenklimaat.

Ligging

Walessingel 9 ligt in een rustige, groene woonstraat met enkel bestemmingsverkeer. In de directe omgeving vindt u waterpartijen, speelvoorzieningen en sportverenigingen. Scholen, kinderdagverblijven en het vernieuwde centrum van Rosmalen met winkels, restaurants en maatschappelijke voorzieningen liggen allemaal op korte afstand. Dankzij de strategische ligging zijn zowel de A2 als de A59 snel bereikbaar en bent u in no time in het bruisende centrum van ’s-Hertogenbosch. Ook met de fiets of het openbaar vervoer bent u uitstekend verbonden.

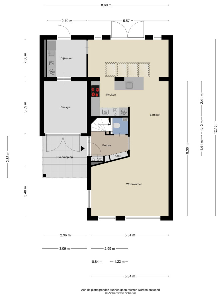
Indeling

Begane grond
Ruime entree/hal met garderobe, toilet en trapopgang. De royale uitgebouwde woonkamer is voorzien van een stijlvolle plavuizen vloer met houtnerfstructuur, comfortabele vloerverwarming over de gehele begane grond en een airconditioning. Dankzij de grote raampartijen, de lichtstraat met elektrisch screen en openslaande tuindeuren is er volop lichtinval en contact met buiten.

De luxe maatwerkkeuken (2021) is een echte eyecatcher en compleet uitgerust met een combi-stoomoven, combi-oven/magnetron, grote koelkast, Quooker-kraan, slim geplaatste vaatwasser op hoogte, inductiekookplaat en afzuigschouw met directe afvoer naar buiten.

Een gedeelte van de voormalige garage is praktisch ingedeeld als multifunctionele werk-/speelkamer met een extra kitchenette voorzien van spoelbak met mengkraan, tweede vaatwasser en grote vriezer, en daarnaast een royale inpandige berging met 3-puntssluitingen op de deuren.

Eerste verdieping
Overloop met airconditioning die de gehele verdieping efficiënt koelt of verwarmt. Drie ruim bemeten slaapkamers, waarvan de hoofdslaapkamer is voorzien van een praktische inloopkast en de slaapkamers aan de voorzijde genieten van een vrij en groen uitzicht.
De badkamer (ca. 2.42 x 2.82 m) is compleet betegeld en voorzien van een ligbad, douchecabine, tweede toilet en wastafel.

Tweede verdieping
Via een vaste trap bereikt u de tweede verdieping met overloop, CV-opstelling (Nefit TopLine), wasmachine- en drogeraansluiting en een ruime vierde (slaap)kamer met dakkapel en bergruimte achter de knieschotten.

Tuin

De woning beschikt over een voor-, zij- en achtertuin met achterom. De achtertuin ligt op het zuidoosten, is ruim opgezet (ca. 8,71 m diep en 8,85 m breed), onderhoudsarm aangelegd en biedt volop privacy. De vrijstaande stenen berging beschikt over elektra en wateraansluiting, ideaal voor hobby’s of opslag.

Bijzonderheden

De gehele begane grond is in 2021 verbouwd
Volledig opnieuw geschilderd door erkend schildersbedrijf (september 2025)
Volledig geïsoleerd en voorzien van HR-beglazing
13 zonnepanelen (2019)
Vloerverwarming over de gehele begane grond
Airconditioning (begane grond en eerste verdieping)
CV-ketel: Nefit TopLine
Mechanische ventilatie, glasvezelinternet en rolluiken aan de gehele achterzijde aanwezig
Grote onderhoudsarme achtertuin met veel privacy en achterom
Vrijstaande stenen berging met elektra en water
Oprit geschikt voor twee auto’s met mogelijkheid tot het installeren van een laadpaal
Rustige ligging met vrij uitzicht

Kortom, een instapklare, energiezuinige en bijzonder complete gezinswoning op een toplocatie in Rosmalen.

Wij nodigen u van harte uit om deze woning zelf te komen ervaren.
Plan snel een vrijblijvende bezichtiging en ontdek alle pluspunten van Walessingel 9!

Deze informatie is door ons met de nodige zorgvuldigheid samengesteld. Onzerzijds wordt echter geen enkele aansprakelijkheid aanvaard voor enige onvolledigheid, onjuistheid of anderszins, dan wel de gevolgen daarvan. Alle opgegeven maten en oppervlakten zijn indicatief.

Media

Brochure

Download de brochure van deze woning

Locatie

VDH makelaar

Een bezichtiging inplannen? We leiden je graag rond in deze woning!

© vdhwonen.nl | Alle rechten voorbehouden | Archief | Cookies | Cookiewet | Privacyverklaring