Status
Verkocht
Adres
Vlondertuinen 65
Postcode
5247 MX
Plaats
Rosmalen
Koopprijs
€ 559.000,- k.k.

Rosmalen – Vlondertuinen 65

VDH wonen makelaardij presenteert deze fantastische waterwoning. Het betreft hier een instapklare en direct aan het water gelegen gezinswoning van alle gemakken voorzien! De woning is gelegen op een aangelegd (schier)eiland wat vanaf de bouw een hele gewilde locatie in de wijk is gebleken. Of je nu een waterliefhebber bent of gewoon op zoek bent… Lees verder »

  1. Soort
    Woonhuis
  2. Bouwjaar
    2015
  3. Woonopp.
    136 m2
  4. Aantal kamers
    5

Interesse in deze woning?


Deel deze woning via:

Plan bezichting
 

Kenmerken

Overdracht

Status
Verkocht
Vraagprijs
€ 559.000,- k.k.
Aanvaarding
In overleg

Bouwvorm

Soort object
Woonhuis
Soort woning
Eengezinswoning
Type woning
Tussenwoning
Bouwjaar
2015
Bouwvorm
Bestaande bouw
Liggingen
Aan water, In woonwijk, Vrij uitzicht

Indeling

Woonoppervlakte
136 m2
Perceel oppervlakte
114 m2
Overige inpandige ruimte
0 m2
Buitenruimtes gebouwgebonden of vrijstaand
0 m2
Oppervlakte externe bergruimte
0 m2
Inhoud
483 m3
Aantal kamers
5
Aantal kamers
5
Aantal slaapkamers
4

Energie

Energieklasse
A
Energielabel einddatum
11 oktober 2030
Isolatie
Volledig geïsoleerd
Warm water
CV ketel
Verwarming
CV ketel
CV ketel type
HRE

Buitenruimte

Tuin
Achtertuin, Voortuin
Hoofdtuin
Achtertuin
Oppervlakte hoofdtuin
35 m2
Ligging hoofdtuin
Zuidoost
Kwaliteit tuin
Normaal

Omschrijving

VDH wonen makelaardij presenteert deze fantastische waterwoning. Het betreft hier een instapklare en direct aan het water gelegen gezinswoning van alle gemakken voorzien! De woning is gelegen op een aangelegd (schier)eiland wat vanaf de bouw een hele gewilde locatie in de wijk is gebleken. Of je nu een waterliefhebber bent of gewoon op zoek bent naar een woning die wat extra’s te bieden heeft, wij durven je te garanderen dat je nooit meer anders zou willen na het woongenot hier te hebben ervaren.
Denk eens aan de zomermaanden waarbij u met een boot van uw eigen aanlegsteiger achter de woning de grote recreatieplas “De Groote Wielen” op vaart of gewoon lekker wilt afkoelen door een duik te nemen vanuit je eigen achtertuin.
Ook in de andere seizoenen ademt deze woning een fijne sfeer en geeft deze locatie een goed gevoel met het vrije uitzicht.
Naast de waterpartijen zijn er vele voorzieningen in de directe nabijheid. Er is onder meer een winkelcentrum, een cafetaria, diverse kinderdagverblijven, scholen, een medisch centrum, lagere scholen en diverse sportfaciliteiten. Op loopafstand is er zelf een strand aanwezig. De A2 en de A59 zijn beide binnen een paar minuten te bereiken.
Voor een dagje in de gezellige en geliefde Bossche binnenstad kan je met de stadsbus eenvoudig het stadscentrum bereiken. Kortom, dit is wonen op een absolute top locatie!

Goed om te weten:

– Hal met meterkast, toilet en toegang (fietsen)berging.
– Lichte woonkamer met open karakter en afgewerkt met een houten vloer v.v. vloerverwarming en schuifpui naar de achtertuin.
– Moderne keuken met combi-oven, heteluchtoven, koelkast, vriezer, vaatwasser, inductie kookplaat en een Quooker kraan.
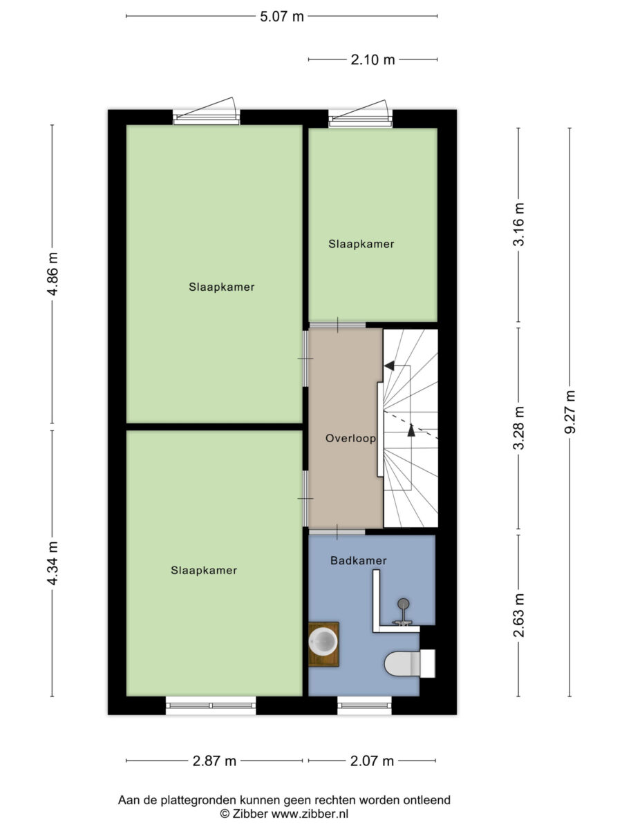
– Drie slaapkamers met laminaatvloer compleet met vloerverwarming.
– Badkamer uitgerust met inloopdouche, wastafel en een toilet.
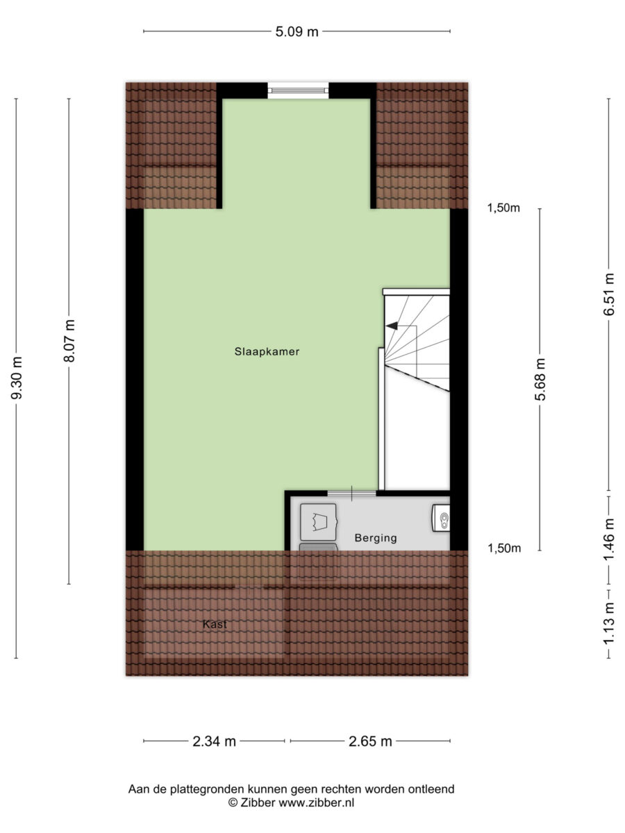
– Royale open ruimte op tweede verdieping voorzien van laminaatvloer. Mogelijkheid tot realiseren van zelfs twee slaapkamers.
– Aparte wasruimte met CV ketel intergas HRE, unit t.b.v. mechanische ventilatie en aansluitingen voor de wasapparatuur.
– Heerlijke achtertuin gelegen op het zuidoosten, met terras en eigen (vaste) vlonder met vrij zicht over het water.

Ben jij nou ook zo enthousiast geworden van deze geweldige waterwoning? Neem voor het plannen van ene bezichtiging contact op met ons kantoor!

Deze informatie is door ons met de nodige zorgvuldigheid samengesteld. Onzerzijds wordt echter geen enkele aansprakelijkheid aanvaard voor enige onvolledigheid, onjuistheid of anderszins, dan wel de gevolgen daarvan. Alle opgegeven maten en oppervlakten zijn indicatief.

Media

Brochure

Locatie

VDH makelaar

Een bezichtiging inplannen? We leiden je graag rond in deze woning!

© vdhwonen.nl | Alle rechten voorbehouden | Archief | Cookies | Cookiewet | Privacyverklaring