Status
Beschikbaar
Adres
Spirealaan 5
Postcode
5247 HJ
Plaats
Rosmalen
Koopprijs
€ 585.000,- k.k.

Rosmalen – Spirealaan 5

VDH wonen makelaardij presenteert deze ruime en fraai ogende eengezinswoning gelegen op een centrale locatie in de gewilde woonwijk ‘De Groote Wielen’. De woning is gesitueerd op een zonnig perceel in een ruim opgezette woonstraat, op steenworp afstand van winkels, scholen, recreatiestrandje De Groote Wielen, diverse sportvelden en een gezondheidscentrum. Kortom, een heerlijke plek om… Lees verder »

  1. Soort
    Woonhuis
  2. Bouwjaar
    2007
  3. Woonopp.
    144 m2
  4. Aantal kamers
    6

Interesse in deze woning?


Deel deze woning via:

Plan bezichting
 

Kenmerken

Overdracht

Status
Beschikbaar
Vraagprijs
€ 585.000,- k.k.
Aanvaarding
In overleg

Bouwvorm

Soort object
Woonhuis
Soort woning
Herenhuis
Type woning
Tussenwoning
Bouwjaar
2007
Bouwvorm
Bestaande bouw
Liggingen
In woonwijk

Indeling

Woonoppervlakte
144 m2
Perceel oppervlakte
129 m2
Overige inpandige ruimte
0 m2
Buitenruimtes gebouwgebonden of vrijstaand
0 m2
Oppervlakte externe bergruimte
8 m2
Inhoud
509 m3
Aantal kamers
6
Aantal kamers
6
Aantal slaapkamers
5

Energie

Energieklasse
A
Energielabel einddatum
4 april 2028
Isolatie
Volledig geïsoleerd
Warm water
CV ketel
Verwarming
CV ketel, Vloerverwarming geheel
CV ketel type
Remeha Tzerra Ace

Buitenruimte

Tuin
Achtertuin, Voortuin
Hoofdtuin
Achtertuin
Oppervlakte hoofdtuin
45 m2
Ligging hoofdtuin
Zuidwest
Kwaliteit tuin
Normaal

Omschrijving

VDH wonen makelaardij presenteert deze ruime en fraai ogende eengezinswoning gelegen op een centrale locatie in de gewilde woonwijk ‘De Groote Wielen’.
De woning is gesitueerd op een zonnig perceel in een ruim opgezette woonstraat, op steenworp afstand van winkels, scholen, recreatiestrandje De Groote Wielen, diverse sportvelden en een gezondheidscentrum.
Kortom, een heerlijke plek om te wonen!

Goed om te weten:
– Hal met toegang tot meterkast met glasvezelaansluiting en toilet met wandcloset en fonteintje.
– De lichte en uitgebouwde woonkamer is voorzien van een mooie keramische tegelvloer met houtnerf structuur. Vanuit de woonkamer is een praktische en ruime trapkast te bereiken.
– Een volledig vernieuwde half open keuken heeft de beschikking over diverse inbouwapparatuur waaronder een vaatwasser, inductie kookplaat, heteluchtoven met stoomfunctie, koelkast, vrieskast en heet-water-kraan.
– Eerste verdieping met 3 ruime slaapkamers met een echte houten delen vloer, waarvan de masterbedroom is doorgetrokken over de volle breedte van de woning.
– Ruime en volledig betegelde badkamer welke is voorzien van een royale inloopdouche, breed wastafelmeubel en zwevend toilet met muurspoeling.
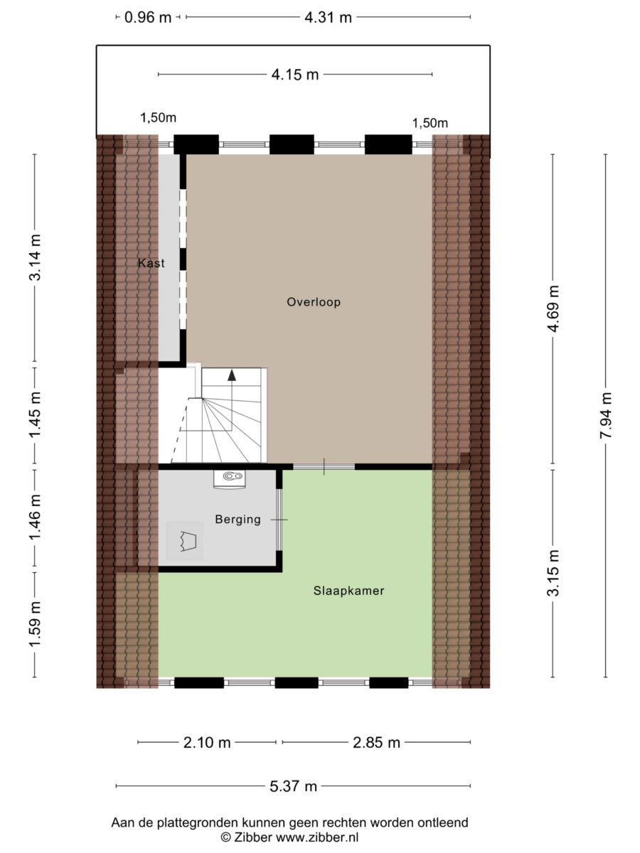
– Tweede verdieping met een vierde slaapkamer met toegang tot de technische ruimte/berging met opstelling CV ketel en aansluitingen t.b.v. wasapparatuur.
– Van de grote open zolder ruimte kan gemakkelijk een royale vijfde slaapkamer worden gemaakt.
– Zonnige op het zuidwesten gelegen achtertuin met bestrating, een (kunst)grasmat, vrijstaande houten berging voorzien van elektra en een achterom.
– Deze energiezuinige woning met een energielabel A is uitgerust met 12 zonnepanelen en in zijn geheel voorzien van vloerverwarming.

Ben jij nou ook zo enthousiast geworden van deze riante en ideale gezinswoning? Neem dan contact op met ons kantoor voor het plannen van een bezichtiging!

Deze informatie is door ons met de nodige zorgvuldigheid samengesteld. Onzerzijds wordt echter geen enkele aansprakelijkheid aanvaard voor enige onvolledigheid, onjuistheid of anderszins, dan wel de gevolgen daarvan. Alle opgegeven maten en oppervlakten zijn indicatief.

Media

Brochure

Download de brochure van deze woning

Locatie

VDH makelaar

Een bezichtiging inplannen? We leiden je graag rond in deze woning!

© vdhwonen.nl | Alle rechten voorbehouden | Archief | Cookies | Cookiewet | Privacyverklaring